Listed by Heather Guerrero of Dwell Real Estate Group
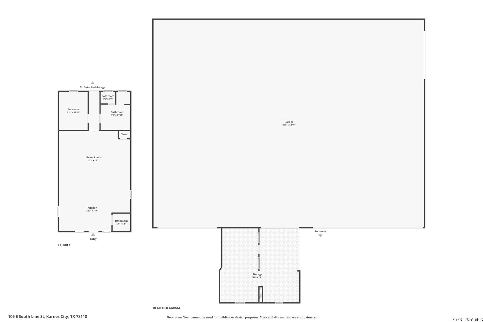
Versatile commercial/industrial property on .5 acres in South Texas offering excellent flexibility for business or live/work use. The 1100 sf main building is configured for multiple offices with potential for residential conversion. This property also features an expansive 4500 sf metal shop and covered outdoor work areas, ideal for contractors, fabrication, storage etc. Open layout provides ample room for equipment, operations and future expansion. Additional highlights include security cameras, gated access, two water reservoir tanks, and plenty on-site parking. Strong accessibility and functional layout make this a great opportunity for owner-operators or investors seeking a flexible commercial property.

Listing Tools

Property Details of 106 South Line

Property Details

Map Location

Based on information submitted to LERA MLS as of February 19, 2026 5:32 AM EST . All data is deemed reliable but is not guaranteed accurate by the MLS. All information should be independently reviewed and verified for accuracy. IDX information is provided exclusively for consumers’ personal, noncommercial use and may not be used for any purpose other than to identify prospective properties consumers may be interested in purchasing.

Hi there! How can we help you?

Contact us using the form below or give us a call.

Send Us A Message:

I agree to receive marketing and customer service calls and text messages from Phyllis Browning | Nathan Dumas. To opt out, you can reply 'stop' at any time or click the unsubscribe link in the emails. Consent is not a condition of purchase. Msg/data rates may apply. Msg frequency varies. Privacy Policy.

Do not fill in this field:

This site is protected by reCAPTCHA and the Google Privacy Policy and Terms of Service apply.

Hi there! How can we help you?

Contact us using the form below or give us a call.

Send Us A Message:

Do not fill in this field:

This site is protected by reCAPTCHA and the Google Privacy Policy and Terms of Service apply.

Hi there! How can we help you?

Contact us using the form below or give us a call.

Send Us A Message:

Do not fill in this field:

This site is protected by reCAPTCHA and the Google Privacy Policy and Terms of Service apply.

Do not fill in this field:

This site is protected by reCAPTCHA and the Google Privacy Policy and Terms of Service apply.

Do not fill in this field:

This site is protected by reCAPTCHA and the Google Privacy Policy and Terms of Service apply.

Do not fill in this field:

This site is protected by reCAPTCHA and the Google Privacy Policy and Terms of Service apply.

$

Do not fill in this field:

This site is protected by reCAPTCHA and the Google Privacy Policy and Terms of Service apply.