Listed by Shannon Beasley Richardson of Keller Williams City-View
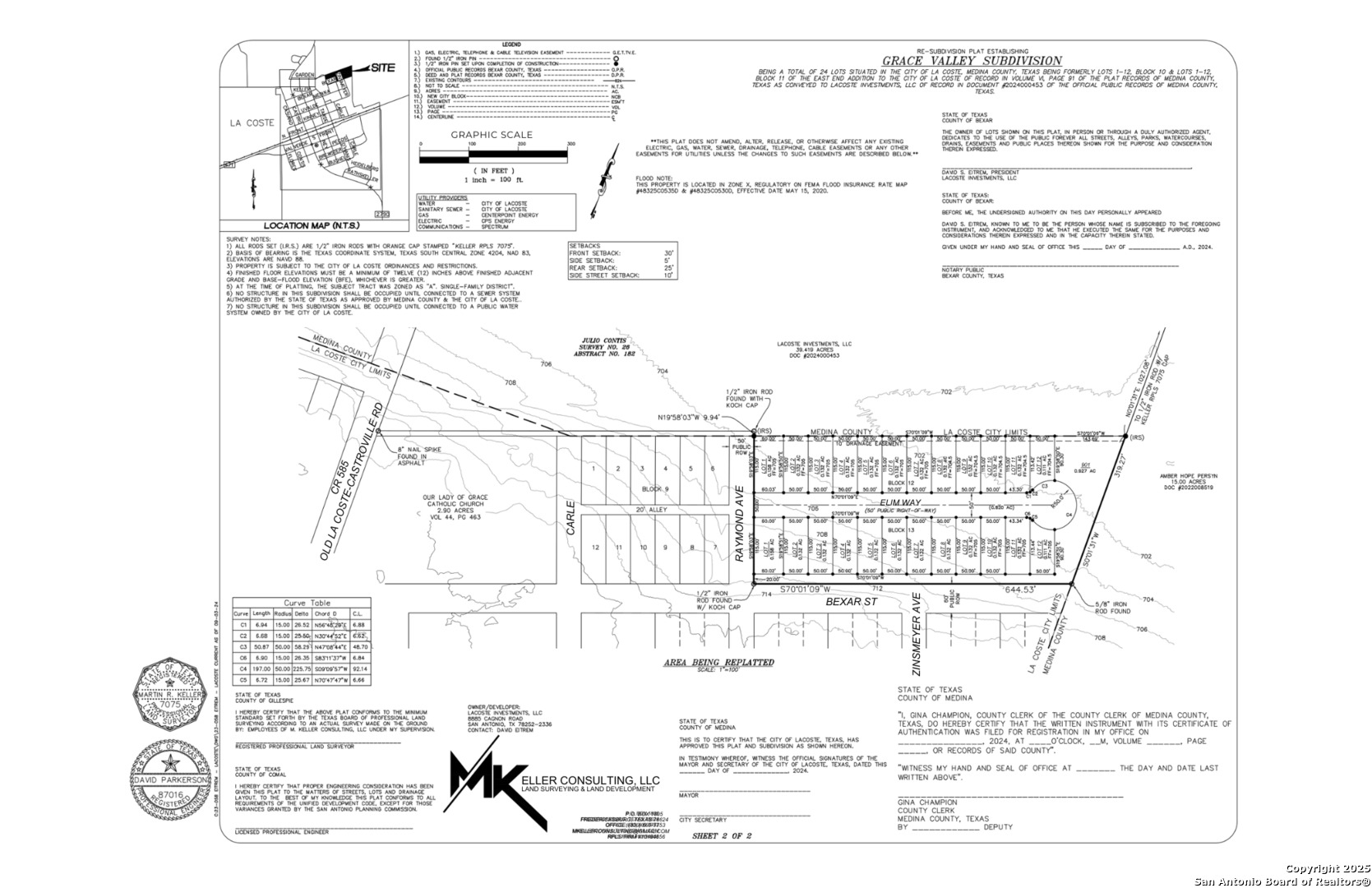
Prime Development Opportunity in LaCoste, TX! Discover 24 platted and approved lots located within the city limits of LaCoste, offering a rare chance for immediate development. With the groundwork already completed, these lots save valuable time and expense, making this property an ideal investment for builders and developers. LaCoste is a growing community that continues to maintain its small-town charm, while offering convenient access to San Antonio and the surrounding area. The property is positioned within the highly regarded Medina Valley ISD, a sought-after district known for strong academics and community involvement. Potential access to city utilities adds to the long-term value and ease of development, allowing you to bring your vision to life with less upfront hassle. Whether you're looking to build out a residential neighborhood or hold for future growth, this opportunity stands out in today's market.

Listing Tools

Property Details of 00 Bexar Street

Property Details

Map Location

Based on information submitted to LERA MLS as of February 19, 2026 12:40 AM EST . All data is deemed reliable but is not guaranteed accurate by the MLS. All information should be independently reviewed and verified for accuracy. IDX information is provided exclusively for consumers’ personal, noncommercial use and may not be used for any purpose other than to identify prospective properties consumers may be interested in purchasing.

Hi there! How can we help you?

Contact us using the form below or give us a call.

Send Us A Message:

I agree to receive marketing and customer service calls and text messages from Phyllis Browning | Nathan Dumas. To opt out, you can reply 'stop' at any time or click the unsubscribe link in the emails. Consent is not a condition of purchase. Msg/data rates may apply. Msg frequency varies. Privacy Policy.

Do not fill in this field:

This site is protected by reCAPTCHA and the Google Privacy Policy and Terms of Service apply.

Hi there! How can we help you?

Contact us using the form below or give us a call.

Send Us A Message:

Do not fill in this field:

This site is protected by reCAPTCHA and the Google Privacy Policy and Terms of Service apply.

Hi there! How can we help you?

Contact us using the form below or give us a call.

Send Us A Message:

Do not fill in this field:

This site is protected by reCAPTCHA and the Google Privacy Policy and Terms of Service apply.

Do not fill in this field:

This site is protected by reCAPTCHA and the Google Privacy Policy and Terms of Service apply.

Do not fill in this field:

This site is protected by reCAPTCHA and the Google Privacy Policy and Terms of Service apply.

Do not fill in this field:

This site is protected by reCAPTCHA and the Google Privacy Policy and Terms of Service apply.

$

Do not fill in this field:

This site is protected by reCAPTCHA and the Google Privacy Policy and Terms of Service apply.